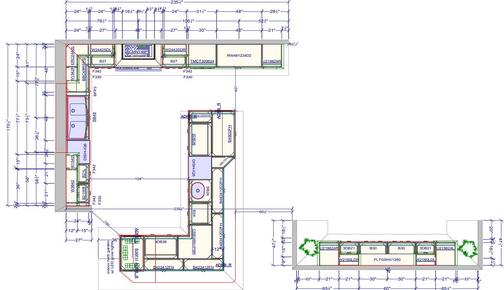
Clients had a lot on the "wish list"

  • 48" wide fridge
  • 48" wide stove
  • tall cabinet w/ microwave
  • 2 - dishwashers
  • 2 - sinks
  • counter seating for 8 people
  • and "something different"
  • cabinets for informal dining room

​​Created an L-shaped kitchen with a peninsula with a bar height counter on a half wall for more seating.


​​Redesigned a good portion of this home where we took out a wall and expanded this kitchen into the living room.  It was tight, but managed to add two kitchen islands (one that provides extra seating).  Needed to add a kitchen pantry, two sinks,  and a pass-through into the truncated living room. Also redesigned their office which doubles as laundry and mud room.  This client preferred a more traditional look and wanted all warm tones to match their existing trim.  Helped them pick out and sold them their Cambria quartz countertop, Coretec LVP flooring, and a backsplash from Soho Studios.


Finished installed cabinets

2020 DESIGN 

2020 DESIGN

Features two dishwashers, icemaker, and mini fridge.

cabinet layout

Designed using a White Shaker a completely transformed kitchen with a 30" deep above the fridge wall cabinet and a tricky angled peninsula with an diagonal sink cabinet.

Color of existing showroom cabinets / quartz top to blend the two cabinets / blue cabinets I added to the design.

​​Client had bought discounted display cabinets (beige) from a home improvement store's showroom floor.  Designed additional cabinetry (blue) to compliment and finish off her kitchen along with a quartz countertop that ties it all together.

Longest island I have designed - 13'

Designed a kitchen layout with different heights and depths to create visual interest for a new home build.

Designed an "L" kitchen with a small island. Used Wellborn cabinets in a Pebble paint.  Both the island and half-wall have an overhang for multiple seating in and around the kitchen. 

Designed a sleek and modern flat panel kitchen cabinet layout for a home renovation near Lake Michigan.

A relatively unused space, I designed a kitchen to show off one of our lines of cabinetry for the FCA showroom.  This shaker cabinet floor plan catches attention with a bar height counter-top that extends out through the once framed window into the entrance area.

Some unique features of this design include a waterfall quartz countertop on both sides of the island and the double stacked cabinets with crown molding that will go to their 9 foot ceilings.

new cabinet layout

The "something different" was an under counter indoor herb garden I designed lit by LED grow lights.  The feature could change into a place to hold plates and silverware for family get togethers when they have a smorgasbord spread of food on the long counter.

- SHOWROOM DISPLAY -

installed cabinets

- SHOWROOM DISPLAY -

The subtle brown veining of this Bella Terra Quartz is the perfect compliment as the creamy white portion of the countertop "pops" against the chocolate brown cabinets.

KITCHENS

AFTER

Added plenty of cabinets for storage, a peninsula with overhang for extra seating, and 15" deep cabinets by the kitchen table to serve as a buffet with sliding hickory and Epoxy doors  that mimic the custom kitchen table. 

AFTER

Took out wall to open up the space to the living room to give an open concept.  Closed off entrance to hallway to gain more wall space for cabinets. 

I wanted to play with verying heights and depths with the Shale stain on Hickory for the perimeter cabinets.  Also wanted to highlight the two-tiered island with a wrap-around butcher block waterfall.

Clients wanted an island that seated four in this tight kitchen.  Used two wall cabinets in the middle as part of the base flanked by two base drawer cabinets to give the island stability.  Also extended the side edges of the granite countertop to seat two more people on the ends.  Furthermore, used a 12" fridge depth wall cabinet (added on to a 4 1/2" base) as a window seat where shoes can be stored.

render vs finished

The client's original "L" kitchen had their sink below the window which made for an awkward space.  Adding an island with a sink made for a better work triangle as-well-as adding additional seating with a counter overhang.

AFTER

Creating an Epoxy river table out of Hickory planks.  The Epoxy will be tinted in shimmering black and white with glow-in-the-dark powder mixed in the resin.

This design added a sleek look with the granite countertops and a touch of bling with the glass/mirrored outside bevel subway backsplash.  Also added kitchen island for extra storage and seating.